Finca Ortega

Beautiful Country Chalet located in Bullas (Murcia).

Large country house situated in a beautiful valley surrounded by mountains with pine trees and vineyards. Panoramic views.

The plot of 25,000 m² is fenced with mature pine trees, palm trees, fruit trees, and over 100 olive trees.

Structures:

  • 3 bedroom, 2 bathroom main house of 200m².
  • Large warehouse or shed for the farm's agricultural machinery of 120m². Located 140m from house and 250m from front gate.
  • Tool house of 25m². Located 65m from house.
  • Swimming pool.
  • Pool house of 40m².
  • Enclosed kennel.

The house has oil central heating and is distributed in porch, 3 large bedrooms, massive lounge/dining room with fireplace of 90m², kitchen, 2 bathrooms, one store room and an interior courtyard.

Large 12m X 6m swimming pool with jacuzzi and garden areas, barbecue and oven.

There is also a pool house with a large changing room, a toilet with shower, and large storage room for the pool filter and garden tools. The pool house could be used as a guest house.

Property Map
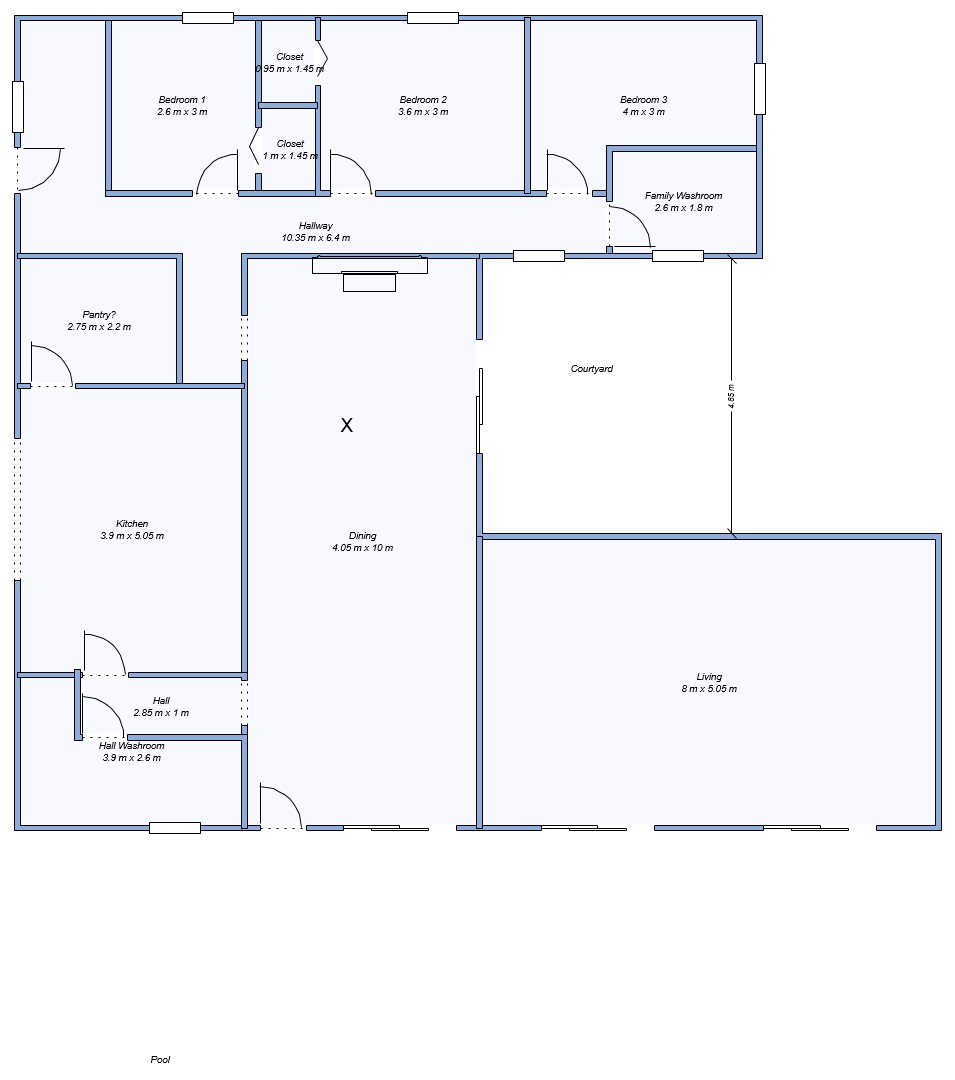
Floor Plan - Room sizes are estimates based on Google Earth measurements and counting floor tiles

 

Front gate view from road. House roof can be seen on right of gate.
Drive from inside gate looking toward house
Drive looking back toward gate
Turn left to view house
Turn around to see kennel
Large parking are in front of house
Parking area
Front of house. "Barn Doors" lead to kitchen.
Kennel and some of parking area.
Large pool with walk-in steps.
Pool has built in Jacuzzi with waterfall into pool.
Large grass & trees area around pool.
Large deck with outdoor shower (black post).
12m X 6m pool, same size as Gandia pool.
Pool & house view
Pool seen from driveway.
Pool seen from parking area.
Pool Washroom
Pool looking towards parking area.
Pool when clean. With play area on grass.
Pool & house view from drive.
25m² Storage shed. 2 Heavily laden almond trees.
Covered veranda & front door.
Yard, living room windows.
Yard & pool house.
Yard. Standing by pool house, looking at living room windows and east side of house.
East of house toward pool.
East of house. Living room east wall, & courtyard.
Courtyard and dining room sliding door.
Bedroom 1. North window.
Bedroom 2. North window.
Bedroom 3, looking east.
Family Washroom. Bedroom hall behind.
Kitchen looking to pantry
Kitchen looking to hall and guest washroom
Kitchen. Note sliders over barn doors.
Kitchen with induction stovetop built-in & marble countertops.
Hall Washroom. Mirror shows shower to right, and kitchen behind you.
Dining Room used as Living Room
Dining Room
Dining Room viewed from living room. Note door to bedrooms.
Dining Room slider to courtyard.
Dining Room looking toward living room.
In Dining Room looking to front door & living room.
Living & Dining, viewed from front door.
Living & Dining viewed from kitchen hall.
South facing glass.
Living Room sliders with mosquito screens.
Living Room sitting area. TV area beyond.
Living Room TV area.
Living Room with view of mountains and pool.
Living Room view of mountains.
Living Room looking toward door and dining room.
Ext-Pool Washroom-large.jpg
PlayPause